亞繁集团驰骋商界20载,获得了社会名誉和经济效益双丰收
沁水居·叠拼别墅,一种承载着文化内涵的生活方式,一种远离尘嚣、清静悠远的生活意境,一个充满着想象力驰骋的发展空间。舒适、健康、艺术、休闲、度假、奢华……沁水居·叠拼别墅正是我们跳脱烦闷生活束缚的梦想之地。
沁水居·叠拼别墅紧依5A景区,代言低密墅境,让闲适生活满溢温馨与质感。

【沁水居】下叠别墅B2层
一层:
南花园入户,纷扰谢于门外,奠定归家的从容与雅致。
厨房是太太的天地,可容纳2-3人同时操作,并预留双门冰箱位置,让厨房有条不紊、整洁有序。厨房更与院子相连,做饭的同时也能享受美好的景致。
考虑到老人上下楼梯不方便,在一层设计了老人房,位置距离各功能区都非常近,且朝南开间、自带飘窗。
【沁水居】下叠别墅2层
卧室效果图
二层:
空间私密独享,露台、书房、卧室,供身心惬意栖居。
南向奢适主卧,独立套房设计,3.6米面宽,大尺度朗阔空间,毫无局促感。臻配瞰景阳台,与自然亲密相拥,在每一个明媚的清晨,被阳光自然唤醒。
南向次卧自带大面宽飘窗,飘窗底部可作为收纳空间,好看又实用。
空间、时间、光线,从感觉、感知的延伸中发酵,给予生活饱满的层次和丰富的功能,一切变得宁静且优雅。
大尺度空间格局,阳台+超大露台设计,收揽满室清风暖阳,演绎格调生活。
专属电梯入户、专属储藏室,多功能空间打造,营造多元生活情境,盛载生活的美好想象。
【沁水居】上叠别墅1层

客厅&餐厅效果图
一层:
独立电梯入户,保障出入归家的纯粹私享;入户玄关,自带收纳空间;L型全明厨房,整洁有序。
餐客厅一体设计,3.6米大尺度大面宽,客厅连通阳台,奢阔采光,塑造舒适的生活场景。
卧室朝南开间,尺度阔绰。清晨,轻轻拉开窗帘,呼吸负离子充足的新鲜空气,开始新一天的美好。

【沁水居】上叠别墅2层
卧室效果图
二层:
双卧室开间南向设计,采光、景观效果俱佳。其中,主卧采用独立套房设计,含步入式衣帽间、卫生间和露台,静谧温馨之余,更增私密性。
南北双露台,赋予居住者怡然自得的生活方式和悠闲舒适的心态。晨曦初阳,有花香与鸟鸣,阳光鲜氧自由穿梭;浩瀚星空,突破视野藩篱,身心尽情徜徉自然。北侧露台还可以设计成屋顶花园,种种花草、闲坐品茗,体验慢节奏生活。
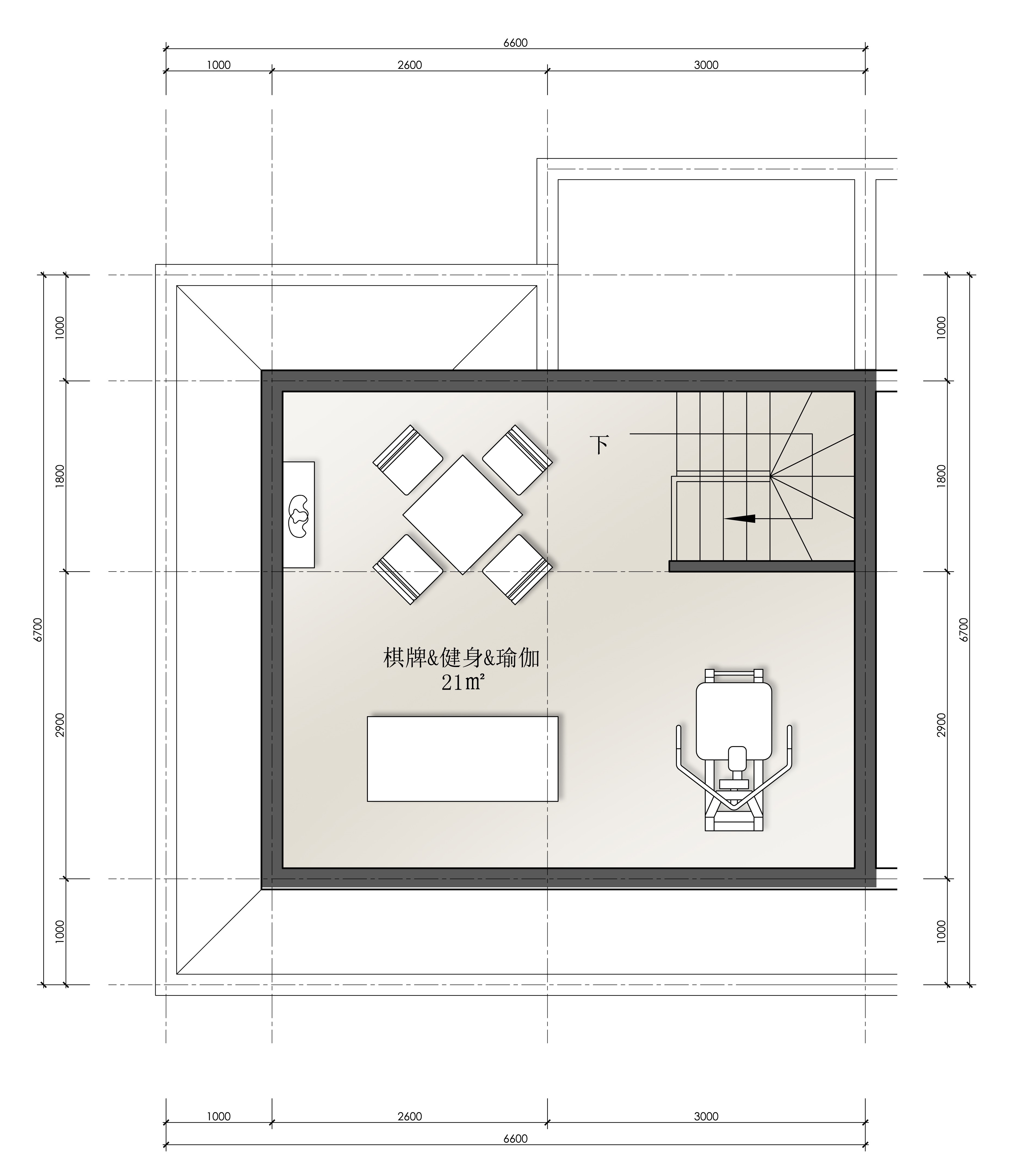
【沁水居】上叠别墅3层

三层:
名流尊享的多功能空间,健身、瑜伽、棋牌、影院,娱乐随心所欲。
奢阔的尺度、丰盛的格局,满载着居住者对品质生活的诉求。沁水居·叠拼别墅,用优雅找到一种与生活最舒服的相处方式。